產品總匯
LN2-40.5六氟化硫斷路器
-
一、概述:
LN2-40.5型戶內高壓SF6斷路器是交流50Hz三相系統中的戶內裝置,可供工礦企業、發電廠、變電站(所)作保護和控制之用。并可用于頻繁操作的場所,也可作為聯絡斷路器和切合電容器組斷路器。
LN2-40.5型配用CT10、17、19或連體型彈簧操動機構。LN2-40.5型SF6斷路器可配GBC-40.5、JYN1-40.5、XGN17-40.5開關柜,也可配KYN61-40.5、 KYN10-40.5金屬封閉移開式高壓開關柜。
本產品符合LN2-40.5型斷路器符合GB1984《交流高壓斷路器》國家標準、JB/T9694《六氟化硫斷路器通用技術條件》和IEC有關標準的規定。
二、使用環境條件:
環境溫度: 最低-25℃ 最高+40℃
海拔高度: 不大于 2000 m
地震烈度: 不大于8度
相對濕度: 日平均不大于95%,月平均不大于90%。
無火災.爆炸危險.無腐蝕性氣體及劇烈震動場所。
三、斷路器主要技術參數∶
斷路器主要技術參數見下表1:
表1
序號 名 稱 單 位 參 數
1 額定電壓 kV 40.5
2 額 定 頻 率 Hz 50
3 額 定 電 流 A 1600
4 額定短路開斷電流 kA 25
5 額定短路關合電流(峰值) 63
6 額定短時耐受電流(4S) 25
7 額定峰值耐受電流 63
8 額定電容器組開斷電流 A 800
9 開斷小電感電流 0.5~15
10 額定操作順序 O-0.3s-CO-180s-CO
11 合閘時間 ms ≤ 150
12 分閘時間 ms ≤ 60
13 絕緣水平 額定雷電沖擊耐壓 kV 185
1 min工頻耐壓 95
14 額定短路電流開斷次數 次 8
15 機 械 壽 命 6000
16 額定電流開斷次數 2000
17 額定失步開斷電流 6.3
18 SF6額定氣壓(20℃表壓) 0.65
19 報警壓力(20℃時) 0.62
20 閉鎖壓力(20℃時) 0.59
21 年漏氣率 ≤ 1%
22 水分含量 ppm ≤ 150
23 六氟化硫氣體重量 kg 約2.5
24 斷路器總重量 約135
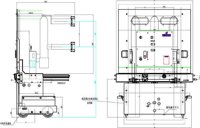
25 外形尺寸(寬*深*高)(相距300) mm 1192*903*1640(配KYN61-40.5)
(相距360) mm 1090*1397*1863(配KYN10-40.5)
(相距460) mm 1212*1350*1800(配JYN1-40.5)
四 、 斷路器主要機械特性調整參數∶
斷路器主要機械特性調整參數見下表2:
表2
序號 名 稱 單 位 LN2-40.5
1 觸頭行程 mm
2 電動合閘位置導電桿上端距上絕緣筒上端尺寸A 84±1.5
3 合閘速度 m/s ≥1.9
4 分閘速度 1.9~2.5
5 三相觸頭分,合閘同期性 ms ≤ 2
6 各相回路電阻 μΩ ≤ 45
四、產品尺寸結構


















