產品總匯
DW10-10戶外高壓柱上多油斷路器
-
一、概述
DW10-10Ⅱ戶外高壓多油斷路器是三相交流50Hz的高壓開關設備,適用于城市或農村額定電壓為10KV的電力系統中,作為電力設備和電力線路的控帛保護之用。本斷路器能可靠分合負荷電流,過載電流及短路電流。
二、結構簡介
斷路器為三相共箱油浸式結構,采用插入式銅鎢觸頭(1型靜頭鑲一片,Ⅱ型靜觸)。箱內裝有一次過電流脫扣器及延時裝置,當網絡出現故障時能自動脫扣。油兼作滅弧和絕緣介質。手力操動機構裝在箱蓋前端與開關聯成一體。導線穿過固一在箱蓋兩側的瓷套管引出。
DW10-10Ⅱ型采用防型瓷套并加大了外絕緣距離;箱蓋與箱體采用全封閉聯接;不需打開箱體即可在機構罩內調整脫扣電流。
三、主要技術參數額定電壓
電高工作電壓
額定電流
額定斷流容量
額定開斷電流
極限通過電流以
脫扣器動作電流倍數
產品重量
外型尺寸
不帶油
油重
千伏
安
兆伏安
千安
有效值
峰值
公斤
毫米
10
11.5
50
50
3.15
4.2
8
1.2-2
96
35
560x670x760
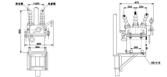
四、外形安裝尺寸

五、DW10-10戶外柱上多油斷路器 使用條件:
海拔不超過4000米;
周圍環境溫度為-30℃~40℃;
無然燃性生氣及導電塵埃的場所;
無易于腐蝕性氣體及導電塵埃的場所;
注:環境溫度-所用之變壓器油有關,當
變壓器油為10號或45號國產油時,則最
低使用溫度不得低于-4




